Available Units
L’Agenzia Cingoli Immobiliare porpone in vendita immobile sviluppato da cielo a terra con ingresso indipendente e corte esclusiva, posto in frazione Strada di Cingoli.
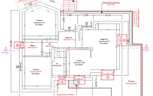
L’unità immobiliare con una superficie di mq. 225 è sviluppato su tre livelli e si compone di tre locali con accesso alla corte + sottoscala al piano terra; soggiorno con balcone, cucina con camino, due camere matrimoniali una delle quali con balcone e bagno al piano primo; quattro vani di cui uno con camino e uno con balcone e bagno al piano secondo. Sottotetto al piano terzo. Struttura in buono stato, interni da modernizzare. Tetto con guaina, facciata, pesiane e balconi rifatti. La proprietà vanta di un giardino recintato di mq. 200 circa attualmente adibito a orto con due accessori in muratura. Chiamaci per ulteriori dettagli: 0733/604286 – 331/7183870 (reperibile su WhatsApp).

























































































